1803 Lychee Street

Fullerton, CA 92833

$ 1,199,990

Price

3

Beds

3

Baths

1,930 Sq. Ft.

$622 / Sq. Ft.

40 Days On Market

Favorite

Share

Have You Been Pre-Qualified? Start Now

Listing provided by agent Cesi Pagano BRE# 01043716 at Keller Williams Realty.

Last Updated: 2 days ago

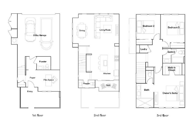
This new three-story townhome offers a spacious and convenient layout. The first floor features a versatile flex space, perfect for a home office or studio. The main living area can be found on the second level within an open-concept layout shared between the kitchen, living and dining areas, with a nearby deck for intimate outdoor experiences. All three bedrooms are located on the third floor for optimal comfort and privacy, including a lavish owner’s suite with a full bathroom and walk-in closet. Hazel is a collection offering brand-new townhomes at Pineridge in Fullerton, CA. Residents will enjoy access to an exclusive pool within the masterplan. Just outside the community are local retailers, parks and interconnected trail systems.

Show More
Property Type Condominium
Year Built 2025
MLS # OC25272803
Listing Type Active
Heating Central
Cooling Central Air
Pool Association, Community
Laundry Electric Dryer Hookup, In Closet, Inside, Upper Level, Washer Hookup
Parking Direct Garage Access, Garage

Payment Calculator

40% Complete (success)
80% Complete (danger)
20% Complete
80% Complete (danger)
60% Complete (warning)
Principal and Interest
Property Taxes
Homeowners' Insurance
HOA Dues
Mortgage Insurance
Image Calculator Icon Customize Calculations | Compare Mortgage Rates

Property Details for: 1803 Lychee Street

Interior Features

Bathroom Information
  • 2 full baths, 2 half baths
Laundry Information
  • Electric Dryer Hookup
  • In Closet
  • Inside
  • Upper Level
  • Washer Hookup
Interior Features
  • Balcony
  • Recessed Lighting
  • Storage
  • Unfurnished
Heating & Cooling
  • Central Air
  • Central

Parking / Garage, Multi-Unit Information, Location Details

Interior Information
  • Balcony
  • Recessed Lighting
  • Storage
  • Unfurnished
Parking Information
  • Direct Garage Access
  • Garage

Exterior Features

Pool & Spa Information
  • Association
  • Community

Property / Lot Details

Lot Information
Property Information
  • Attached
  • Tax Parcel Number:

Nearby Businesses

  • Grocery Stores
  • Drug Stores
  • Coffee Shops
  • Restaurants
  • Health & Medical
  • Fitness & Activity
  • Arts & Entertainment
  • Nightlife & Bars
    Browse all businesses in Fullerton, CA, 92833

    Tour This Condo

    MONDAY

    19

    JAN

    TUESDAY

    20

    JAN

    WEDNESDAY

    21

    JAN

    THURSDAY

    22

    JAN

    FRIDAY

    23

    JAN

    SATURDAY

    24

    JAN

    SUNDAY

    25

    JAN

    Schedule A Tour
    Ryan Case, Licensed Realtor & Team Lead

    Ryan Case

    Licensed Realtor & Team Lead

    949-570-4445 Contact Ryan Case
    Listing provided by agent Cesi Pagano BRE# 01043716 at Keller Williams Realty.

    Last Updated: 2 days ago